коттедж Киевское шоссе 23 км от МКАД
| Лот: | № 2037 |
| Стоимость: | 1 450 000 $ |
| Шоссе: | Киевское |
| Расстояние от МКАД: | 23 км |
| Площадь участка: | 12 cот. |
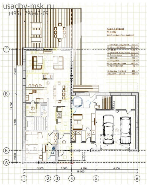
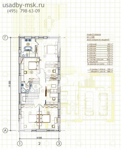
| Площадь дома: | 360 кв.м |
Киевское шоссе 23 км. НОВАЯ МОСКВА! Охраняемый поселок.
На лесном участке 12 соток расположен дом 360 кв.м. Участок примыкает к лесному массиву.
Авторский архитектурный проект, дом вписан в участок так, что большая часть деревьев на участке сохранены.
В доме: 5 спален, 4 с/у, 3 гардеробных комнаты, большие кухня со столовой и гостиная с камином, множество функциональных вспомогательных помещений, спа зона и барбекю.
Кухня будет полностью меблирована со всем необходимым встроенным оборудованием.
Участок выстлан тенелюбивым газоном, есть площадка для стоянки нескольких машин.
В доме также оборудован гараж на две машины, имеющий въезд непосредственно с улицы.
Материал стен - щелевой кирпич с утеплителем.
Материал фундамента и перекрытий - железобетон.
Отделка снаружи - камень и дерево.
Интерьеры выполнены также в камне, дереве, металле и с использованием дизайнерских шведских обоев.
Все плиточные полы с подогревом.
Магистральный газ (котел уже работает), скважина 70 м с системой водоочистки, септик присоединен к общей системе стока, электричество 10КВт (можно докупить).
В доме установлены охранная и пожарная сигнализации, работают эфирное и спутниковое ТВ. Оптоволоконный интернет.
Полный комплект документов, проектов и разрешений.
Фотографии коттедж Киевское шоссе





